|
喵星人爬上爬下 |
從屋外看,還以為像是一間商業空間,實際上可卻是不折不扣的住宅空間,屋內屋外除了機能性的設計外,也充分的搭配使用復古元件,舉凡屋外的板凳、窗戶、屋內的燈具、地磚等....讓室內充滿些許的復古風味。
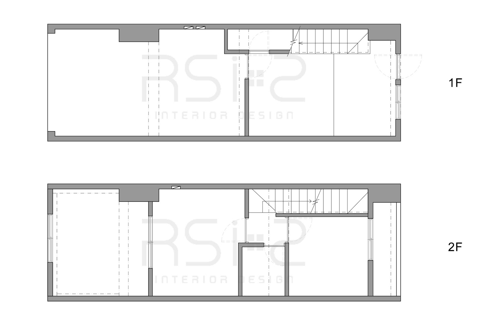
一樓客廳位置原本是挑高五米,犧牲垂直空間,讓二樓臥室加大,同時兼具書房與客廳的功能。因為屋主養了數隻喵星人,為了讓喵星人能夠自由上下一二樓,在一樓客廳牆壁設計喵星人的樓梯,並在一二樓之間的層板中開出一塊只有喵星人能夠自由上下的通道。
這樣的空間設計,能讓喵星人多運動,不會因為狹小的空間,而越來越肥胖,喵星人還會因為多運動反而更健康。
|
Before |
|
After |
建築形式:社區公寓
室內面積:28坪(1樓14坪+2樓14坪)
室內格局:2房2廳2衛浴












































請先 登入 以發表留言。